Auto-Einstellhalle "Gafadura", Vaduz FL
Zurück zu den Projekten
2008
Projektleiter Bauherr
Neubau

Neubau Einstellhalle
Vaduz FL
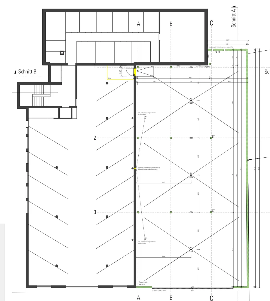
Von 2008 bis 2011 war ich für die ITW Ingenieurunternehmung AG, Balzers FL tätigt. Die ITW entwickelt und realisierte in dieser Zeit diverse Immobilienprojekte, welche ich als Projektleiter betreuen durfte. Bei der Auto-Einstellhalle "Gafadura" wurde eine bestehende eingeschossige Tiefgarage lateral erweitert und 15 zusätzliche Parkplätze geschaffen. Das Projekt wurde von KAUNBE Architekten projektiert und realisiert.
Projektart:
Neubau
Funktion:
Projektleiter Bauherr
Bauherr:
Private Stiftung
Ort:
Vaduz FL
Zeitraum:
2008
Status:
Abgeschlossen





Projekte
Kontakt










