Neubau Wohn- und Geschäftshaus "Plazza da Scuola" St.Moritz
Zurück zu den Projekten
2011
Projektleiter Bauherr
Ersatzneubau

Ersatzneubau Wohn- und Geschäftshaus,
St.Moritz GR
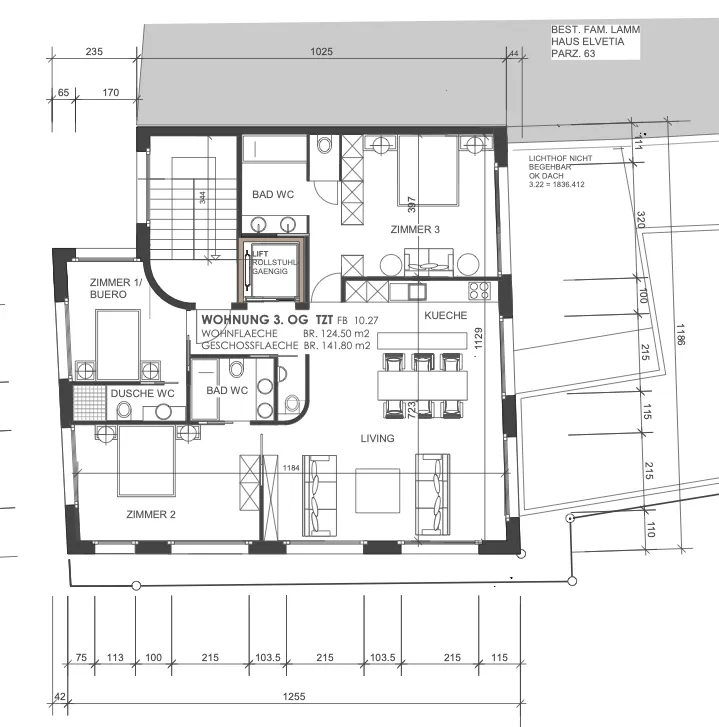
Im Zentrum von St.Moritz wurde eine bestehende Liegenschaft abgebrochen und ein moderner Ersatzneubau erstellt. An prominenter Lage an der "Plazza da Scuola" wurde ein Wohn- und Geschäftshaus projektiert und realisiert. Das Projekt wurde durch diverse Rekurse verzögert. Verschiedene Architekten und Baumanagement-Unternehmen waren beteiligt. Die Koordination dieses Projektes war entsprechend sehr anspruchsvoll.
Projektart:
Ersatzneubau
Funktion:
Projektleiter Bauherr
Bauherr:
Privater Bauherr
Ort:
St.Moritz GR
Zeitraum:
2008 bis 2011
Status:
Abgeschlossen







Projekte
Kontakt










